Gracias a la extraordinaria donación de un generoso benefactor, el Dr. Yusuf Hamied, Cudeca construirá un Centro de Estudios e Investigación en Cuidados Paliativos. Con él se hará realidad la visión fundacional de contribuir a la formación de profesionales que sepan añadir vida a los días, empleando la forma especial de cuidar de Cudeca.
Este centro tiene como objetivo principal formar a profesionales de todos los niveles y ramas para la mejora en la calidad asistencial en los cuidados paliativos, así como desarrollar modelos innovadores de intervención e investigación.
Además, este Centro será una fuente de ingresos complementaria, que contribuirá a hacer frente al aumento de pacientes de atendidos, que se ha duplicado en los últimos cinco años.

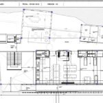
El Centro, que se construirá en unos terrenos anexos a Cudeca cedidos por el Ayuntamiento de Benalmádena, contará con tres plantas donde se impartirá formación en cuidados paliativos.
En sus aulas tendrán lugar las actividades formativas organizadas por Cudeca para profesionales de la salud interesados en los cuidados al final de la vida. Se impartirá formación para todos los perfiles profesionales y de todos los niveles.
El Centro, que comenzará a construirse a principios del 2019, está actualmente en la fase final de diseño. La encargada del proyecto es la arquitecta Graciela Waen.
El pasado 27 de julio el Dr. Yusuf Hamied y su esposa Farida pusieron la primera piedra del edificio. Al acto asistió el Delegado de Gobierno en Málaga, José Luís Espejo; la Delegada de Salud e Igualdad de la Junta de Andalucía, Ana Isabel González de la Torre; el alcalde del Ayuntamiento de Benalmádena, Víctor Navas; el alcalde de Mijas, Juan Carlos Maldonado; la Vicepresidenta segunda de la Diputación Provincial de Málaga, Ana Carmen Mata; y el Vicerrector de Estudiantes de la Universidad de Málaga, José Francisco Murillo.
Por parte de la Fundación Cudeca asistieron su Fundadora y Presidenta de Honor, Joan Hunt O.B.E.; el Presidente, Ricardo Urdiales; y la Gerente-Directora Médico, María Luisa Martín. Y como protagonista destacado del acto, el Dr. Yusuf Hamied, presidente de CIPLA, y Farida Hamied, benefactores de CUDECA y artífices de la construcción del nuevo centro. Asistieron también voluntarios, representantes de diferentes entidades públicas y privadas, y amigos de la Fundación. Saber más







